Espace propriétaire
fr

Votre recherche

Exclusivité
Fontaine-les-Grès (10280)

9 pièces - 188 m²

Fontaine Les Grés - Maison de 188m² avec jardin

199 000 €
Ref : 2010681
Découvrir le bien

À mi-chemin entre Troyes et Romilly Sur Seine (1h gare de l'Est depuis Romilly et à 20 minutes des deux communes), cette jolie maison 19ème de type 7 offre tout le confort pour une famille désireuse d'un cadre de vie chaleureux et fonctionnel dans une commune dynamique.

Sur plus de 100m² en rez-de-chaussée: entrée, salle à manger avec accès sur jardin, cuisine aménagée donnant sur jardin, dégagement, salon avec cheminée, un salon tv de près de 15m² pouvant se destiner à une chambre selon les besoins, une pièce d'eau avec branchements en attente permettant la création d'une salle de douche et un wc.

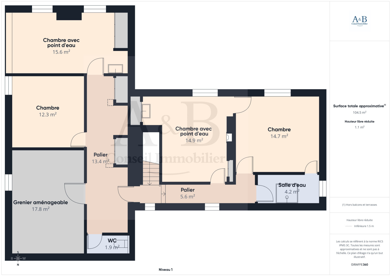
À l'étage : quatre chambres spacieuses avec point d'eau, une salle de douche en marbre, et un wc séparé. Sur le même niveau un grenier aménageable (fenêtre déjà en place).

Au sous-sol : chaufferie et atelier (chaudière gaz à condensation et un surpresseur)

Magnifique jardin arboré de 1233m² et un garage fermé de 16m².

Bien offrant la possibilité de mixer vie familiale et activité professionnelle sans nuisance grâce à ses accès bien indépendants les uns des autres (deux sur rue et un sur jardin) et un aménagement spécialement pensé pour séparé ces espaces différents.

Gare de TROYES et ROMILLY SUR SEINE à 20 minutes, possibilités d'aménagement, praticité, volume, parquets, cheminées, marbre, hauteur sous plafond, sont autant d'atouts pour ce bien au bon entretien.

Famille en quête d'un cadre de vie chaleureux et fonctionnel, désireux de mixer vie professionnelle et personnelle ou de créer son cocon familial ce bien est pour vous.


Les informations sur les risques auxquels ce bien est exposé sont disponibles sur le site Géorisques
TRAD_ZEPHYR_Caracteristique TRAD_ZEPHYR_Valeurs
Code postal 10280
surface terrain 1 233 m²
Surface loi Carrez (m²) 188 m²
Nombre de chambre(s) 5
Nombre de pièces 9
Nombre de niveaux 2
TRAD_ZEPHYR_Caracteristique TRAD_ZEPHYR_Valeurs
Nb de salle d'eau 1
Cuisine Séparée
Mode de chauffage Gaz
Type de chauffage Radiateur
Format de chauffage Individuel
Nombre de garage 1
Année de construction 1826
Terrain piscinable OUI
Terrain arboré OUI
TRAD_ZEPHYR_Caracteristique TRAD_ZEPHYR_Valeurs
Copropriété NON
TRAD_ZEPHYR_Caracteristique TRAD_ZEPHYR_Valeurs
Prix de vente 199 000 €
Les honoraires d'agence seront intégralement à la charge du vendeur  
Taxe foncière annuelle 825 €
DPE GES
Contacter pour ce bien
L'agence
Téléphone 03 25 42 04 64
Adresse
15 Place Audiffred 10000 Troyes

* Champ obligatoire

Les informations recueillies sur ce formulaire sont enregistrées dans un fichier informatisé par La Boite Immo agissant comme Sous-traitant du traitement pour la gestion de la clientèle/prospects de l'Agence / du Réseau qui reste Responsable du Traitement de vos Données personnelles. La base légale du traitement repose sur l'intérêt légitime de l'Agence / du Réseau. Elles sont conservées jusqu'à demande de suppression et sont destinées à l'Agence / au Réseau. Conformément à la loi « informatique et libertés », vous disposez des droits d’accès, de rectification, d’effacement, d’opposition, de limitation et de portabilité de vos données. Vous pouvez retirer votre consentement à tout moment en contactant directement l’Agence / Le Réseau. Consultez le site https://cnil.fr/fr pour plus d’informations sur vos droits. Si vous estimez, après avoir contacté l'Agence / le Réseau, que vos droits « Informatique et Libertés » ne sont pas respectés, vous pouvez adresser une réclamation à la CNIL. Nous vous informons de l’existence de la liste d'opposition au démarchage téléphonique « Bloctel », sur laquelle vous pouvez vous inscrire ici : https://www.bloctel.gouv.fr Dans le cadre de la protection des Données personnelles, nous vous invitons à ne pas inscrire de Données sensibles dans le champ de saisie libre.
Ce site est protégé par reCAPTCHA, les Politiques de Confidentialité et les Conditions d'Utilisation de Google s'appliquent.

Découvrir nos outils