Espace propriétaire
fr

Votre recherche

Vendu
Villechétif (10410)

6 pièces - 197 m²

Propriété de charme - Troyes Est

Nous consulter
Ref : 2010609
Découvrir le bien

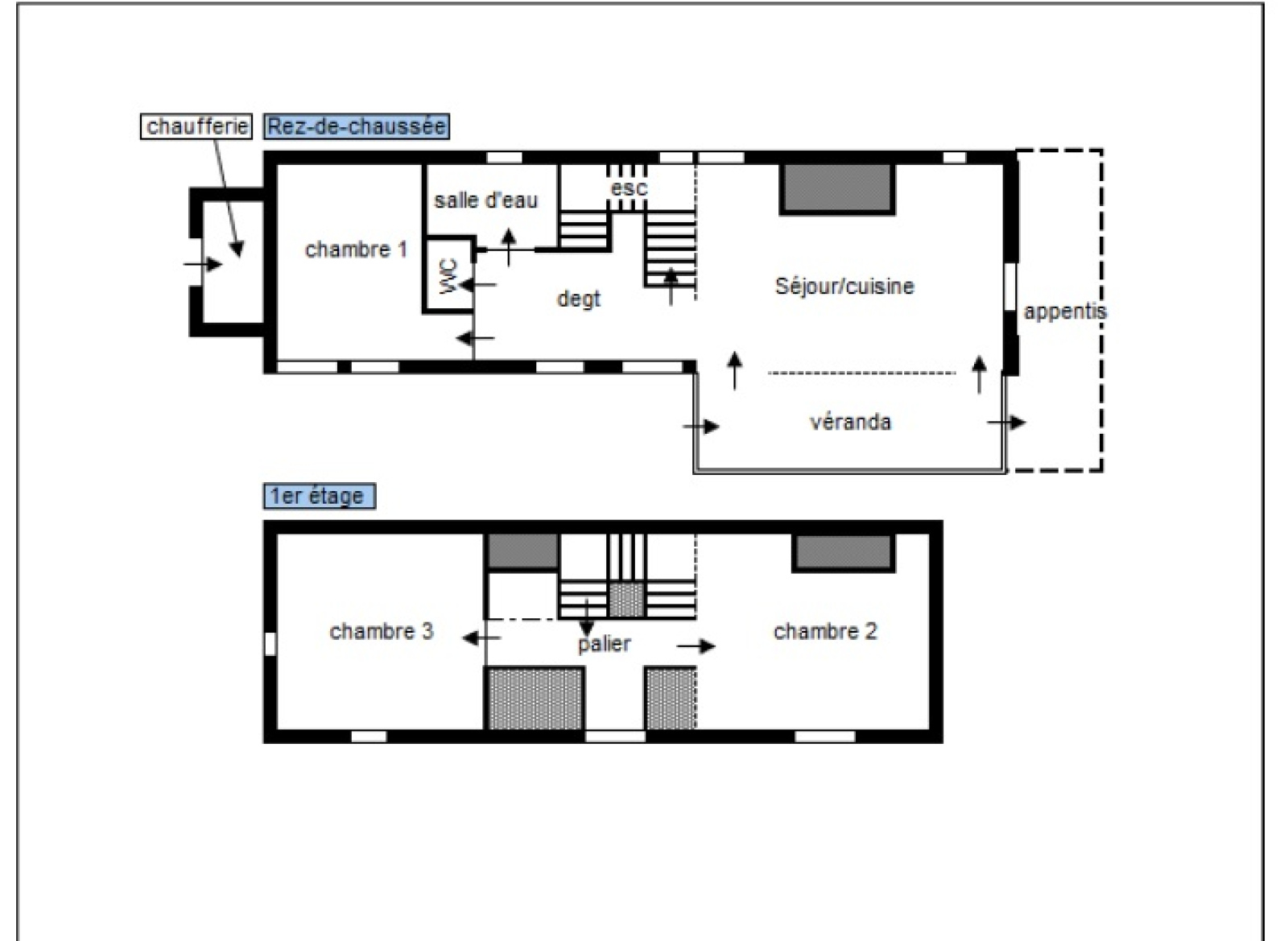
À moins de 20 minutes du centre de Troyes et de la gare (1h30 Paris gare de l'Est), dans un environnement calme et verdoyant, nous vous proposons à la vente cette maison familiale de près de 200m² habitables avec maison d'invités et dépendance.

La maison principale se compose d'un espace à vivre de 55m² offrant un accès direct sur la terrasse et le jardin, d'une cuisine séparée avec arrière cuisine, d'un bureau de 26m².

À l'étage un palier dessert une suite parentale de plus de 25m² avec salle d'eau, deux chambres, un bureau, une salle de bains et un wc.

Une maison indépendante de 70m² offrant séjour avec coin cuisine, trois chambres dont une en rez-de-chaussée, salle d'eau et wc.

Une grange de 380m² en bon état pouvant se destiner à un usage tant professionnel que personnel complète ce bien.

Terrain clos et arboré de 4160m², possibilité de rentrer plusieurs véhicules dans la cour, grange en bon état de plus de 380m² au sol, piscine hors sol de la marque Zodiac: autant d'atouts pour ce bien de caractère situé à proximité des commerces, de l'entrée d'autoroute A26 tout en offrant un accès rapide à la ville de Troyes par la rocade.

TRAD_ZEPHYR_Caracteristique TRAD_ZEPHYR_Valeurs
Code postal 10410
surface terrain 4 160 m²
Surface loi Carrez (m²) 197 m²
Nombre de chambre(s) 4
Nombre de pièces 6
Nombre de niveaux 2
TRAD_ZEPHYR_Caracteristique TRAD_ZEPHYR_Valeurs
Nb de salle de bains 1
Nb de salle d'eau 1
Mode de chauffage Gaz de ville
Type de chauffage Radiateur
Format de chauffage Individuel
Année de construction 1900
TRAD_ZEPHYR_Caracteristique TRAD_ZEPHYR_Valeurs
Copropriété NON
TRAD_ZEPHYR_Caracteristique TRAD_ZEPHYR_Valeurs
Taxe foncière annuelle 2 063 €
DPE GES
Contacter pour ce bien
L'agence
Téléphone 03 25 42 04 64
Adresse
15 Place Audiffred 10000 Troyes

* Champ obligatoire

Les informations recueillies sur ce formulaire sont enregistrées dans un fichier informatisé par La Boite Immo agissant comme Sous-traitant du traitement pour la gestion de la clientèle/prospects de l'Agence / du Réseau qui reste Responsable du Traitement de vos Données personnelles. La base légale du traitement repose sur l'intérêt légitime de l'Agence / du Réseau. Elles sont conservées jusqu'à demande de suppression et sont destinées à l'Agence / au Réseau. Conformément à la loi « informatique et libertés », vous disposez des droits d’accès, de rectification, d’effacement, d’opposition, de limitation et de portabilité de vos données. Vous pouvez retirer votre consentement à tout moment en contactant directement l’Agence / Le Réseau. Consultez le site https://cnil.fr/fr pour plus d’informations sur vos droits. Si vous estimez, après avoir contacté l'Agence / le Réseau, que vos droits « Informatique et Libertés » ne sont pas respectés, vous pouvez adresser une réclamation à la CNIL. Nous vous informons de l’existence de la liste d'opposition au démarchage téléphonique « Bloctel », sur laquelle vous pouvez vous inscrire ici : https://www.bloctel.gouv.fr Dans le cadre de la protection des Données personnelles, nous vous invitons à ne pas inscrire de Données sensibles dans le champ de saisie libre.
Ce site est protégé par reCAPTCHA, les Politiques de Confidentialité et les Conditions d'Utilisation de Google s'appliquent.

Découvrir nos outils