Espace propriétaire
fr

Votre recherche

Vendu
Troyes (10000)

10 pièces - 237,38 m²

Duplex avec garage et terrasse secteur Paix.

Nous consulter
Ref : 2010579
Découvrir le bien

Troyes, dans un bâtiment début 20ème en parfait état, au cœur d'un quartier prisé et à quelques minutes à pied de la gare (1h30 Paris gare de l'Est), nous vous proposons à la vente ce duplex de plus de 230m² avec terrasse et garage.

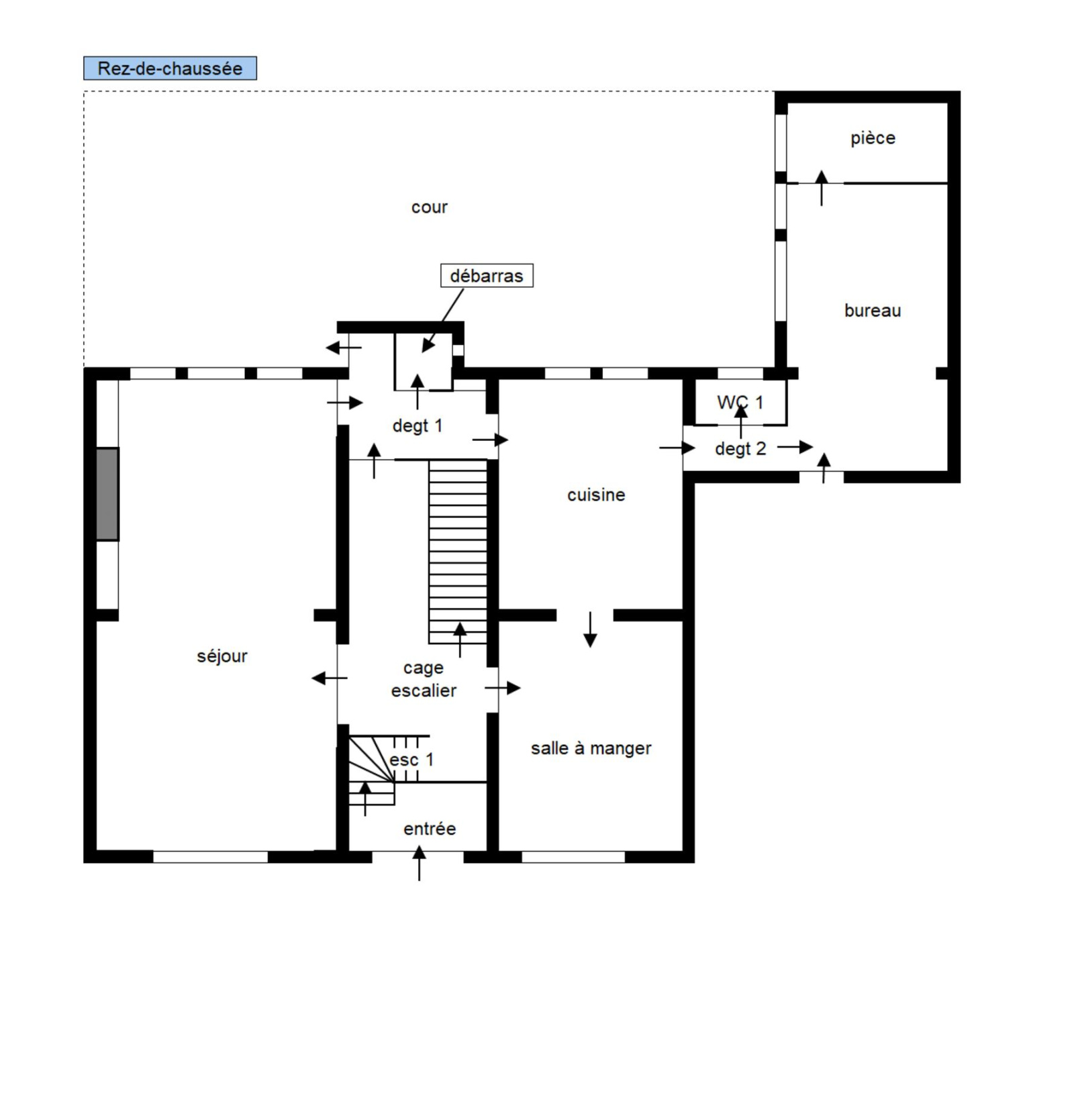
Hall d'entrée, pièce de vie traversante de près de 40m² offrant un accès direct à une terrasse arboré de 72m² , salle à manger, cuisine, un bureau avec une pièce attenante offrant la possibilité de créer une chambre avec sa salle de bains (arrivées d'eau en place).

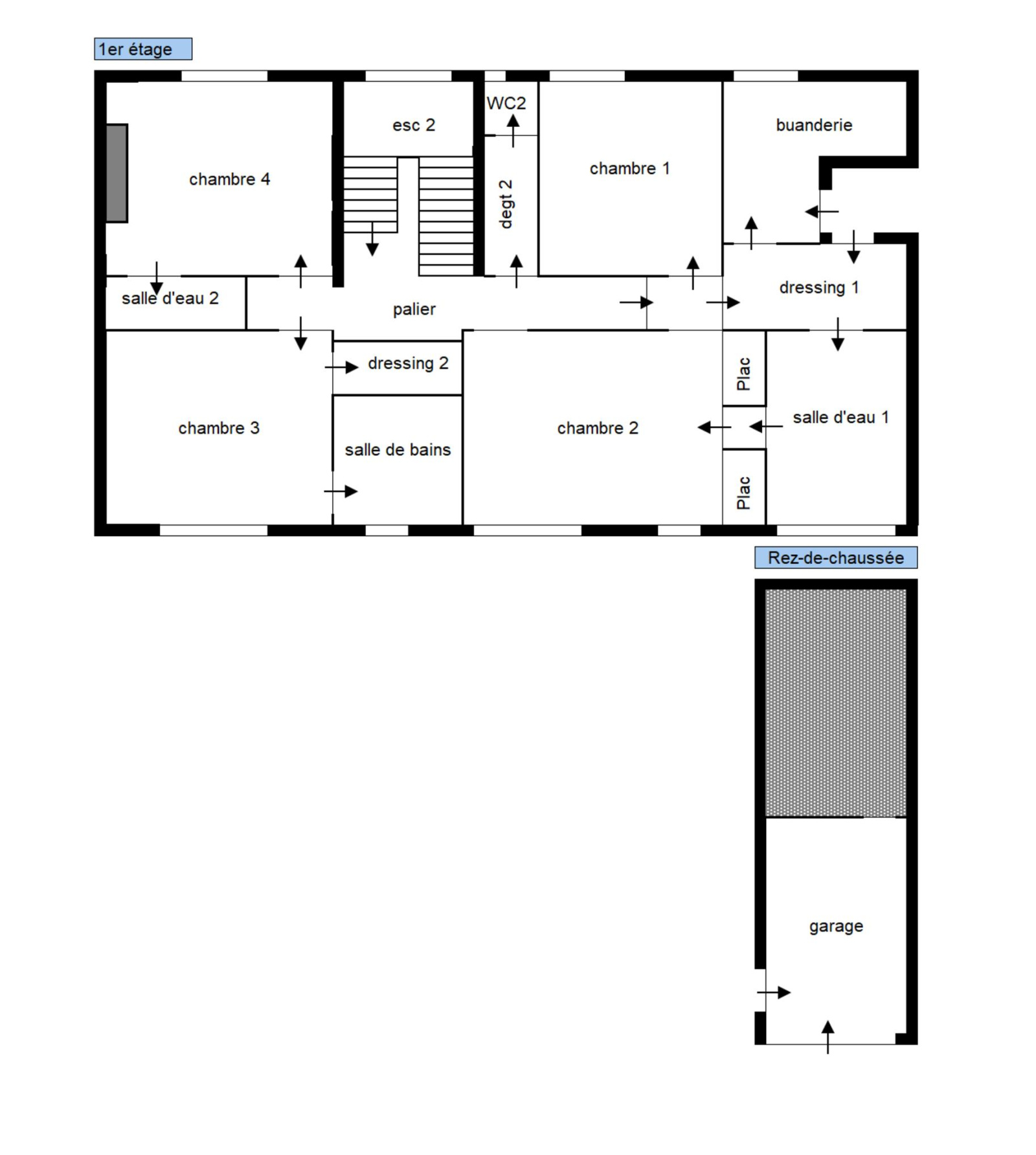
A l'étage un vaste palier dessert quatre chambres, deux salles d'eau, une salle de bains et une buanderie.

Garage,local à vélo en sous-sol et pièce de plus de 40m², double vitrage, grande terrasse, petite copropriété de seulement trois appartements: autant d'atouts pour ce bien de caractère, compromis idéal entre une maison et un appartement.

TRAD_ZEPHYR_Caracteristique TRAD_ZEPHYR_Valeurs
Code postal 10000
Surface loi Carrez (m²) 237,38 m²
Nombre de chambre(s) 5
Nombre de pièces 10
Nombre de niveaux 2
TRAD_ZEPHYR_Caracteristique TRAD_ZEPHYR_Valeurs
Nb de salle de bains 1
Nb de salle d'eau 2
Cuisine Séparée
Mode de chauffage Gaz
Type de chauffage Radiateur
Format de chauffage Collectif
Terrasse OUI
Nombre de garage 1
Cave OUI
Année de construction 1920
TRAD_ZEPHYR_Caracteristique TRAD_ZEPHYR_Valeurs
Copropriété OUI
nombre de lots 9
Quote Part annuelle des charges 2 970 €
plan de sauvegarde NON
statut du syndic pas de procédure en cours
TRAD_ZEPHYR_Caracteristique TRAD_ZEPHYR_Valeurs
Charges 247 €
Taxe foncière annuelle 3 731 €
DPE GES
Contacter pour ce bien
L'agence
Téléphone 03 25 42 04 64
Adresse
15 Place Audiffred 10000 Troyes

* Champ obligatoire

Les informations recueillies sur ce formulaire sont enregistrées dans un fichier informatisé par La Boite Immo agissant comme Sous-traitant du traitement pour la gestion de la clientèle/prospects de l'Agence / du Réseau qui reste Responsable du Traitement de vos Données personnelles. La base légale du traitement repose sur l'intérêt légitime de l'Agence / du Réseau. Elles sont conservées jusqu'à demande de suppression et sont destinées à l'Agence / au Réseau. Conformément à la loi « informatique et libertés », vous disposez des droits d’accès, de rectification, d’effacement, d’opposition, de limitation et de portabilité de vos données. Vous pouvez retirer votre consentement à tout moment en contactant directement l’Agence / Le Réseau. Consultez le site https://cnil.fr/fr pour plus d’informations sur vos droits. Si vous estimez, après avoir contacté l'Agence / le Réseau, que vos droits « Informatique et Libertés » ne sont pas respectés, vous pouvez adresser une réclamation à la CNIL. Nous vous informons de l’existence de la liste d'opposition au démarchage téléphonique « Bloctel », sur laquelle vous pouvez vous inscrire ici : https://www.bloctel.gouv.fr Dans le cadre de la protection des Données personnelles, nous vous invitons à ne pas inscrire de Données sensibles dans le champ de saisie libre.
Ce site est protégé par reCAPTCHA, les Politiques de Confidentialité et les Conditions d'Utilisation de Google s'appliquent.

Découvrir nos outils