Espace propriétaire
fr

Votre recherche

Vendu
Troyes (10000)

9 pièces - 222 m²

Superbe maison de ville du 19ème

Nous consulter
Ref : 2010572
Découvrir le bien

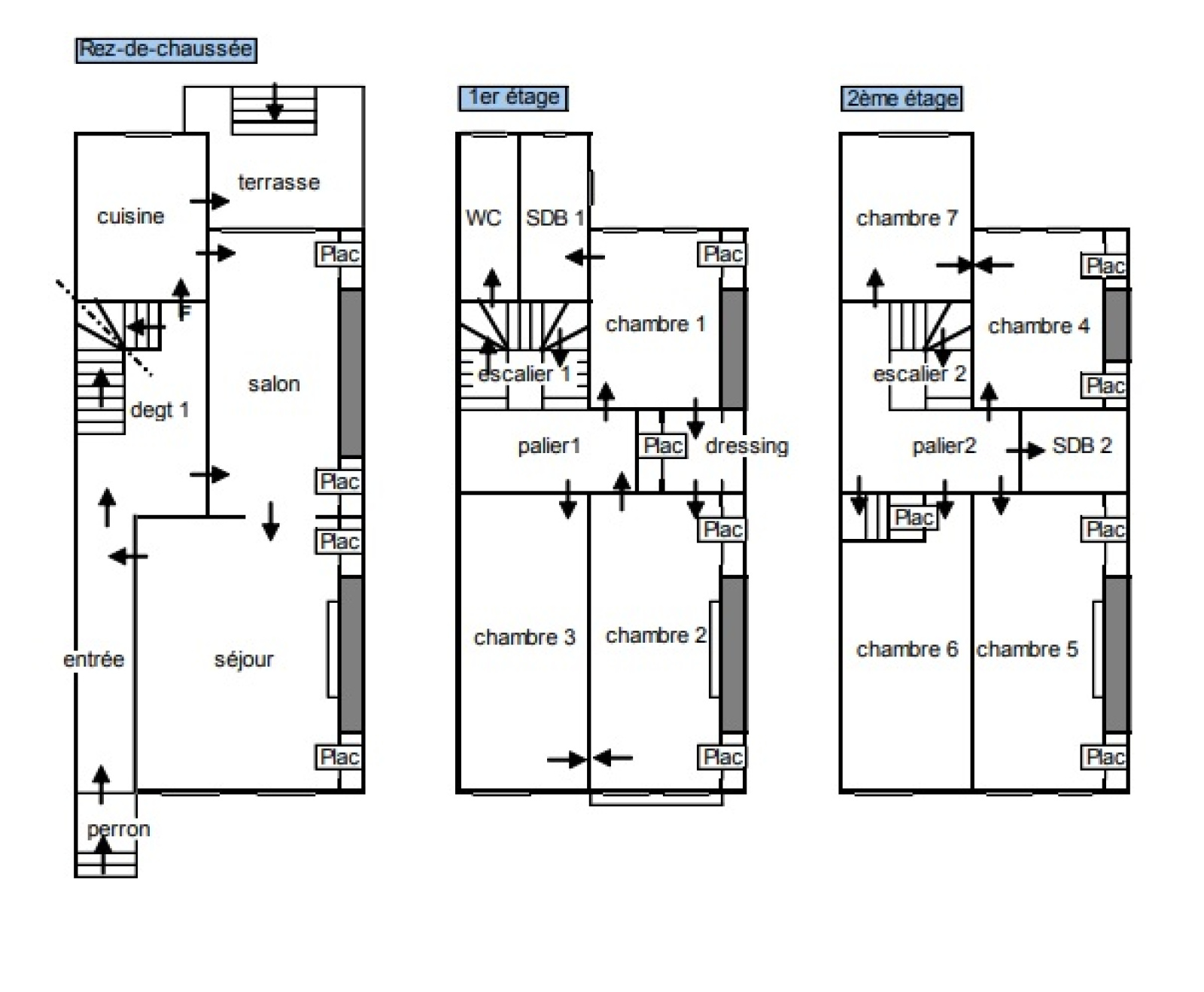
Troyes, à moins de cinq minutes à pied de la gare (1h30 Paris gare de l'Est) maison 19ème à l'architecture remarquable.

Entrée, cuisine, pièce de vie traversante offrant un accès direct sur la terrasse et le jardin.

En étages: six chambres, un bureau, deux salles de bains dont une avec douche et baignoire.

Grenier aménageable et sous-sol complet avec chaufferie, buanderie atelier et cave à vins.

Double vitrage, toiture récente (2016), isolation renforcée, nombreux éléments architecturaux remarquables, beaux volumes, possibilité de louer une place de parking à proximité immédiate: autant d'atouts pour ce bien idéalement situé pour une vie citadine.


Les informations sur les risques auxquels ce bien est exposé sont disponibles sur le site Géorisques
TRAD_ZEPHYR_Caracteristique TRAD_ZEPHYR_Valeurs
Code postal 10000
surface terrain 258 m²
Surface loi Carrez (m²) 222 m²
Nombre de chambre(s) 7
Nombre de pièces 9
Nombre de niveaux 3
TRAD_ZEPHYR_Caracteristique TRAD_ZEPHYR_Valeurs
Nb de salle de bains 2
Cuisine Séparée
Type de cuisine SEMI-EQUIPEE
Mode de chauffage Gaz de ville
Type de chauffage Radiateur
Format de chauffage Central
Terrasse OUI
Murs mitoyens 2
Année de construction 1889
Quartier gare
TRAD_ZEPHYR_Caracteristique TRAD_ZEPHYR_Valeurs
Copropriété NON
TRAD_ZEPHYR_Caracteristique TRAD_ZEPHYR_Valeurs
Taxe foncière annuelle 3 900 €
DPE GES
Contacter pour ce bien
L'agence
Téléphone 03 25 42 04 64
Adresse
15 Place Audiffred 10000 Troyes

* Champ obligatoire

Les informations recueillies sur ce formulaire sont enregistrées dans un fichier informatisé par La Boite Immo agissant comme Sous-traitant du traitement pour la gestion de la clientèle/prospects de l'Agence / du Réseau qui reste Responsable du Traitement de vos Données personnelles. La base légale du traitement repose sur l'intérêt légitime de l'Agence / du Réseau. Elles sont conservées jusqu'à demande de suppression et sont destinées à l'Agence / au Réseau. Conformément à la loi « informatique et libertés », vous disposez des droits d’accès, de rectification, d’effacement, d’opposition, de limitation et de portabilité de vos données. Vous pouvez retirer votre consentement à tout moment en contactant directement l’Agence / Le Réseau. Consultez le site https://cnil.fr/fr pour plus d’informations sur vos droits. Si vous estimez, après avoir contacté l'Agence / le Réseau, que vos droits « Informatique et Libertés » ne sont pas respectés, vous pouvez adresser une réclamation à la CNIL. Nous vous informons de l’existence de la liste d'opposition au démarchage téléphonique « Bloctel », sur laquelle vous pouvez vous inscrire ici : https://www.bloctel.gouv.fr Dans le cadre de la protection des Données personnelles, nous vous invitons à ne pas inscrire de Données sensibles dans le champ de saisie libre.
Ce site est protégé par reCAPTCHA, les Politiques de Confidentialité et les Conditions d'Utilisation de Google s'appliquent.

Découvrir nos outils