Espace propriétaire
fr

Votre recherche

Vendu
Troyes (10000)

8 pièces - 181 m²

Troyes, maison 19ème en parfait état

Nous consulter
Ref : 2010595
Découvrir le bien

Quartier Paix, à seulement quelques minutes à pied de la gare (1h30 Paris gare de l'Est), maison 19ème alliant à la perfection le moderne et l'ancien grâce à une extension des plus réussies, tant sur le plan esthétique que fonctionnel.

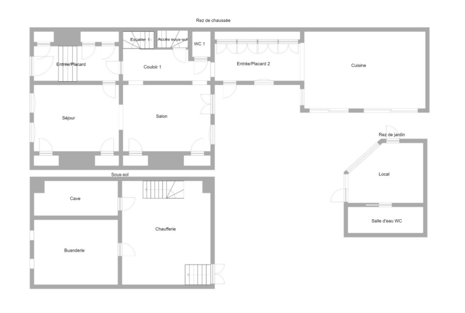
Le rez-de-chaussée se compose d'une entrée, d'une pièce de vie double de plus de 35m², d'un bel espace à vivre avec cuisine équipée offrant un accès direct à la terrasse et à la piscine par de larges baies vitrées.

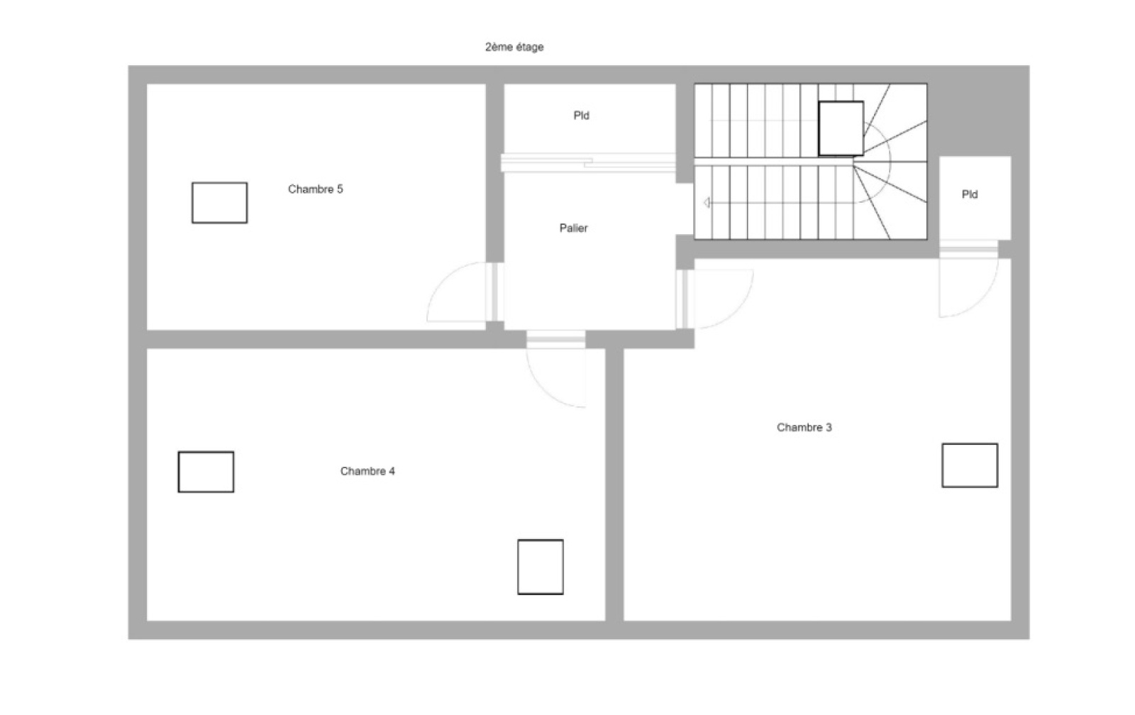
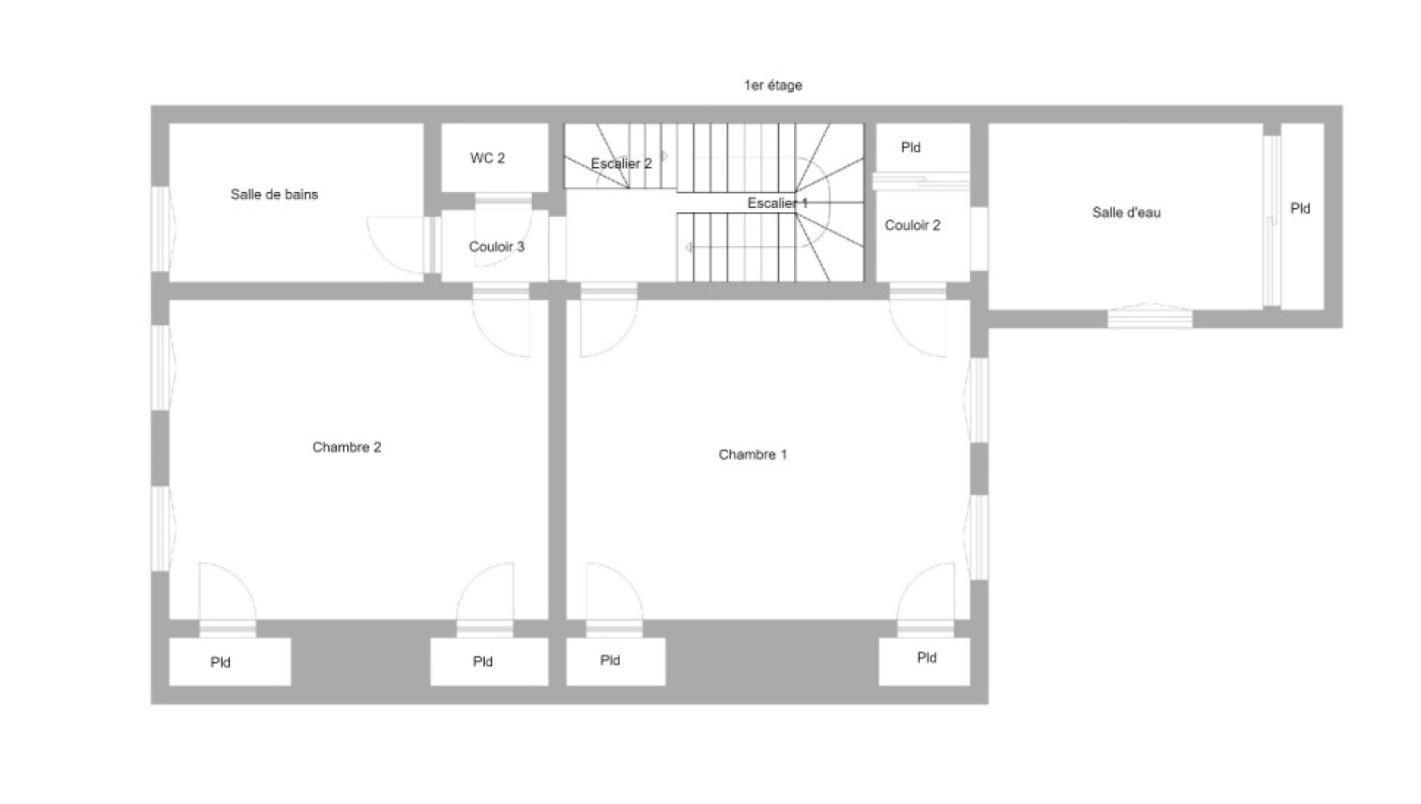
En étages: cinq chambres, une salle d'eau avec dressing et une salle de bains.

Sous-sol avec chaufferie, buanderie et cave à vins.

Volumes, luminosité, cachet, piscine chauffée avec pool house, possibilité de rentrer deux véhicules dans la cour (portail automatique) parfait état d'entretien et de présentation, situation géographique appréciable, climatisation réversible, double vitrage: autant d'atouts pour ce bien à l'esthétisme recherché.


Les informations sur les risques auxquels ce bien est exposé sont disponibles sur le site Géorisques
TRAD_ZEPHYR_Caracteristique TRAD_ZEPHYR_Valeurs
Code postal 10000
surface terrain 398 m²
Surface loi Carrez (m²) 181 m²
Nombre de chambre(s) 5
Nombre de pièces 8
Nombre de niveaux 3
TRAD_ZEPHYR_Caracteristique TRAD_ZEPHYR_Valeurs
Nb de salle de bains 1
Nb de salle d'eau 1
Cuisine Américaine
Type de cuisine Equipée
Mode de chauffage Gaz de ville
Type de chauffage Radiateur
Format de chauffage Individuel
Terrasse OUI
Murs mitoyens 1
Année de construction 1890
Quartier Paix - Cottet, Saint-Martin
TRAD_ZEPHYR_Caracteristique TRAD_ZEPHYR_Valeurs
Copropriété NON
TRAD_ZEPHYR_Caracteristique TRAD_ZEPHYR_Valeurs
Taxe foncière annuelle 3 042 €
DPE GES
Contacter pour ce bien
L'agence
Téléphone 03 25 42 04 64
Adresse
15 Place Audiffred 10000 Troyes

* Champ obligatoire

Les informations recueillies sur ce formulaire sont enregistrées dans un fichier informatisé par La Boite Immo agissant comme Sous-traitant du traitement pour la gestion de la clientèle/prospects de l'Agence / du Réseau qui reste Responsable du Traitement de vos Données personnelles. La base légale du traitement repose sur l'intérêt légitime de l'Agence / du Réseau. Elles sont conservées jusqu'à demande de suppression et sont destinées à l'Agence / au Réseau. Conformément à la loi « informatique et libertés », vous disposez des droits d’accès, de rectification, d’effacement, d’opposition, de limitation et de portabilité de vos données. Vous pouvez retirer votre consentement à tout moment en contactant directement l’Agence / Le Réseau. Consultez le site https://cnil.fr/fr pour plus d’informations sur vos droits. Si vous estimez, après avoir contacté l'Agence / le Réseau, que vos droits « Informatique et Libertés » ne sont pas respectés, vous pouvez adresser une réclamation à la CNIL. Nous vous informons de l’existence de la liste d'opposition au démarchage téléphonique « Bloctel », sur laquelle vous pouvez vous inscrire ici : https://www.bloctel.gouv.fr Dans le cadre de la protection des Données personnelles, nous vous invitons à ne pas inscrire de Données sensibles dans le champ de saisie libre.
Ce site est protégé par reCAPTCHA, les Politiques de Confidentialité et les Conditions d'Utilisation de Google s'appliquent.

Découvrir nos outils