Espace propriétaire
fr

Votre recherche

Semi-exclusif
Troyes (10000)

10 pièces - 370 m²

Propriété d'exception au coeur du Bouchon

550 000 €
Ref : 2010662
Découvrir le bien

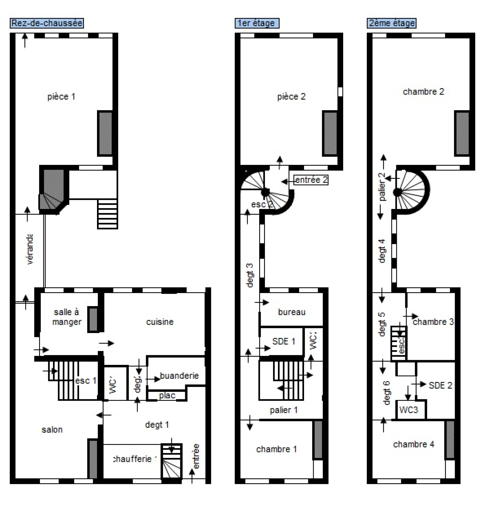
Au coeur de Troyes et à seulement quelques minutes à pied de la gare (1h30 Paris, gare de l'Est), nous vous proposons à la vente cette maison de famille développant 370m² habitables et composée de deux bâtis historiques réunis par une verrière.
Le bâtiment principal propose en rez-de-chaussée un salon, une salle à manger, une cuisine offrant un accès direct sur la terrasse et le jardin, un cellier et une buanderie.
Relié au premier bâtiment par un passage vitré, un l'hôtel particulier du 16ème siècle, entièrement restauré et inscrit à l'inventaire supplémentaire des monuments historiques, offre en rez-de-chaussée un salon bibliothèque de plus de 40m².
En étages et répartis sur les deux bâtisses se trouvent un salon TV de 40m², six chambres et trois salles d'eau.
Volumes, matériaux de qualité, jardin, possibilité de rentrer plusieurs véhicules dans la cour, superbe cave à vins, terrasse, cachet: autant d'atouts pour ce bien unique destiné aux amoureux de l'histoire et du patrimoine.
Idéal pour une famille souhaitant profiter de tous les avantages de la vie citadine.


Les informations sur les risques auxquels ce bien est exposé sont disponibles sur le site Géorisques
TRAD_ZEPHYR_Caracteristique TRAD_ZEPHYR_Valeurs
Code postal 10000
surface terrain 412 m²
Surface loi Carrez (m²) 370 m²
Nombre de chambre(s) 6
Nombre de pièces 10
Nombre de niveaux 4
TRAD_ZEPHYR_Caracteristique TRAD_ZEPHYR_Valeurs
Nb de salle d'eau 3
Cuisine Séparée
Type de cuisine SEMI-EQUIPEE
Mode de chauffage Gaz
Type de chauffage Radiateur
Format de chauffage Central
Terrasse OUI
Murs mitoyens 2
Exposition Nord
Année de construction 1600
Quartier gare, Hôtel de ville
TRAD_ZEPHYR_Caracteristique TRAD_ZEPHYR_Valeurs
Copropriété NON
TRAD_ZEPHYR_Caracteristique TRAD_ZEPHYR_Valeurs
Prix de vente 550 000 €
Les honoraires d'agence seront intégralement à la charge du vendeur  
Taxe foncière annuelle 6 000 €
DPE GES
Contacter pour ce bien
L'agence
Téléphone 03 25 42 04 64
Adresse
15 Place Audiffred 10000 Troyes

* Champ obligatoire

Les informations recueillies sur ce formulaire sont enregistrées dans un fichier informatisé par La Boite Immo agissant comme Sous-traitant du traitement pour la gestion de la clientèle/prospects de l'Agence / du Réseau qui reste Responsable du Traitement de vos Données personnelles. La base légale du traitement repose sur l'intérêt légitime de l'Agence / du Réseau. Elles sont conservées jusqu'à demande de suppression et sont destinées à l'Agence / au Réseau. Conformément à la loi « informatique et libertés », vous disposez des droits d’accès, de rectification, d’effacement, d’opposition, de limitation et de portabilité de vos données. Vous pouvez retirer votre consentement à tout moment en contactant directement l’Agence / Le Réseau. Consultez le site https://cnil.fr/fr pour plus d’informations sur vos droits. Si vous estimez, après avoir contacté l'Agence / le Réseau, que vos droits « Informatique et Libertés » ne sont pas respectés, vous pouvez adresser une réclamation à la CNIL. Nous vous informons de l’existence de la liste d'opposition au démarchage téléphonique « Bloctel », sur laquelle vous pouvez vous inscrire ici : https://www.bloctel.gouv.fr Dans le cadre de la protection des Données personnelles, nous vous invitons à ne pas inscrire de Données sensibles dans le champ de saisie libre.
Ce site est protégé par reCAPTCHA, les Politiques de Confidentialité et les Conditions d'Utilisation de Google s'appliquent.

Découvrir nos outils